杭州临平万达广场魔力空间运动工场—口袋屋室内运动乐园设计建造案例
一、项目案例概况
项目名称:Pokiddo魔力空间运动梦工场
项目地址:杭州市临平区万达广场
项目面积:1800㎡
项目层高:4.5m,局部挑空区域层高为9m
二、项目案例背景

Pokiddo 魔力空间运动梦工场坐落于杭州临平万达广场 —— 作为杭州第五座万达广场的商业体,目前已是临平规模最大的商业综合体。其背后有着曲折的发展历程:曾濒临倒闭的它,被万达集团接手后历经两年二次改造升级。而魔力空间项目的合伙人,早在两年前万达宣布接手改造运营该商业体时,就持续关注这块场地,通过不懈与万达交涉争取,最终在众多竞争对手中脱颖而出,以极具优势的商务条件租得该场地。魔力空间的投资人是我们多年的合作伙伴,彼此信任且惺惺相惜,因此当他们提出共同投资该项目时,我们创始人 CEO 宝哥毫不犹豫便应允了。正因如此,这个项目成为口袋屋 EPC+O+F 品牌合作 / 联营的典型案例 —— 涵盖工程设计、设备供应、施工建设、场馆运营及共同投资,全部都由口袋屋团队全程打造建设并负责运营。
三、项目案例设计
场馆规划直接决定了设计质量的 70%,且口袋屋始终秉持 “无运营不设计” 的核心理念,所以在着手进行场地规划之前,我们必定会开展深入的调研与全面的思考。首先会深入考察项目场地周边的区域环境、人流特征及商业生态,其次还会综合评估场地自身的空间结构、功能属性及使用场景。

【建造前场馆情况】
Pokiddo 魔力空间运动梦工场的场地中,约 1/3 的区域为层高 9 米的挑空空间,且紧邻主入口区域;场地整体布局较为规整,但东西两侧各存在一处折角空间。这样的空间结构下,如何实现高低空区域的功能搭配与动线联动,以及如何对折角区域进行高效利用,成为了我们设计规划的核心重点与难点。

【总平面规划】
在挑空区域,我们将双层高空拓展探险塔与滑轨联动设置于主入口核心位置,打造兼具震撼视觉地标与客流引导功能的双效节点;以未来科技主题城堡为主体,搭配五道不锈钢滑梯滑桶组成的滑梯嘉年华,用科幻感造型与明快色彩构建极具冲击力的视觉焦点。西侧折角区域特别定制异形竞速攀岩与徒手攀岩组合,通过空间重构使该区域利用率提升 35%,实现商业空间的高效利用。
低空区域则融合墙面闯关、综合体能训练区、活力蹦床,创新性地将经典蹦床项目与保龄球、数字运动设备完美搭配,打造动静结合的多元体验场景。这种传统娱乐与科技互动的跨界碰撞,构建起覆盖全年龄段的活力空间,既能满足青少年的冒险需求,也为家庭客群提供亲子娱乐的休闲场景。

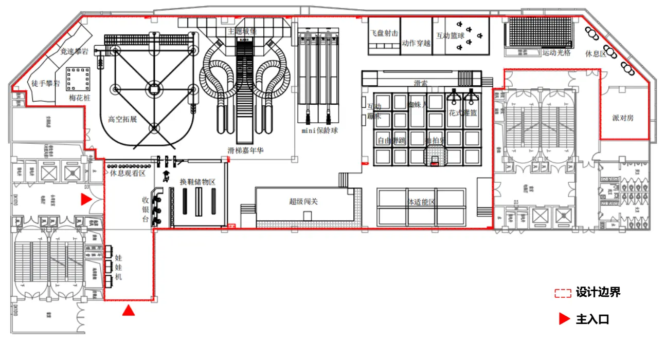
【平面分区图】
我们将整个场馆划分为:综合服务区、攀岩竞技区、拓展挑战区、滑梯嘉年华、数字运动区、超级闯关区、活力蹦床区、休息区&派对房。合理的分区不仅让玩家更具体验感,而且能够大大节省场馆运营中的人员成本。

【动线规划图】
本场馆创新采用树状脉络与回环动线的黄金组合设计 —— 科学规划的树状分支动线如毛细血管般延伸至每个项目区域,引导玩家沿自然探索路径畅玩无阻,确保 98% 的项目覆盖率;主回环动线则如动脉般串起高空探险塔、主题城堡滑梯等核心亮点,形成 "探索 - 体验 - 惊喜" 的闭环游玩节奏。这种双动线系统通过三维立体布局,将空间利用率提升30%,不仅让玩家在行进中不断邂逅项目亮点,更通过互动打卡点的巧妙设置,催生自发的社交分享行为。当玩家循着动线标识指引穿梭于高低空区域时,回环动线设计带来的 "柳暗花明" 体验感,配合项目节点的趣味联动,构建起沉浸式的探索游玩场景,让全年龄段客群都能在畅玩中收获惊喜与互动乐趣。




【效果图】
场馆以银色、紫色、蓝色构建未来科技宇宙场域:液态金属质感如银河基底铺陈空间,用冷冽光泽传递硬核科技美学;极光紫以渐变霓虹穿梭其间,如量子能量激发大脑创意神经元;深海蓝通过漫反射光效柔化边界,既以静谧色调稳定情绪,又与紫色交织成神秘星云 —— 这种色彩协奏既平衡了星际探索的神秘感与视觉舒适度,更通过光影律动持续激发玩家的创造力与冒险欲,让每个转角都成为触发想象的科幻场景。
Pokiddo魔力空间运动梦工场拥有多样化的运动游乐项目,打造全年龄段的立体游玩空间:
经典游玩区:弹跳云巅的活力蹦床、翻越障碍的忍者闯关、穿梭空中的回旋滑索,搭配主题城堡与不锈钢滑桶组成的尖叫滑梯,让肾上腺素在重力与速度中飙升;
数字运动区:保龄球与数字计分系统碰撞出社交竞技火花,飞碟射击在 AR 靶场开启星际对战,动作穿越与互动篮球用光影捕捉每一次精彩瞬间;
挑战探索区:带活动机关的墙面闯关如立体迷宫,专业竞速攀岩墙与徒手攀岩区以异形造型挑战肢体极限,每个项目都暗藏趣味彩蛋等玩家解锁。从亲子家庭到 Z 世代玩家,都能在虚实交织的空间里,收获突破自我的成就感与沉浸式冒险乐趣。
四、项目施工落地
从环境设计到游乐设备落地,Pokiddo 魔力空间由口袋屋团队实现全链路闭环服务:设计团队以未来科技美学为蓝图,施工团队则同步推进环境硬装与设备安装,在争分夺秒的 9 周攻坚期内,通过每日进度看板管理与三重安全校验机制,严格遵循 ISO 安全标准完成各项工艺细节。从仿液态金属墙面的精细化施工到高空设备的载荷测试,每个环节都植入 "安全基因",最终实现从图纸到实景的 1:1 高品质还原,为乐园构筑起兼顾视觉震撼与游玩安全的双重保障。

口袋屋用自己的设备交付验收标准和要求,构建起全流程品质管控闭环:
黄金四维自检:项目经理带领技术团队依据《项目自检表》,对每项设备开展强度(静态载荷测试)、安全(防坠保护模拟)、可玩性(人体工学体验)、工艺(接缝精度检测)四大维度验收,单项目平均通过10余项指标检查;
可视化安全指引:为每个项目定制图文并茂的《安全守则》和《入场安全须知》,从玩家身高/体重限制到动作规范均配示意图和视频,并在入口处播放;
体系化培训:开展涵盖功能玩法讲解、设备操作规范(含应急演练)、日常维保标准的系统化培训,运维团队需通过实操考核方可上岗;
双向确认机制:最终通过设备运行全流程模拟验收后,双方签署包含多项核心条款的《项目验收确认单》,完成从建设到运营的专业交接。
这种将极其严苛的检验验收标准植入室内乐园场景的全链条服务模式,让每个设备不仅是游玩载体,更成为经得起时间检验的安全艺术品。
五、场馆实拍呈现
关于口袋屋

口袋屋作为国内知名的运动乐园设备厂家和室内乐加盟品牌,专注于一站式商业乐园建造服务,目前口袋屋已在全球建造超1000+场馆案例,拥有丰富的场馆规划设计,设备生产制造、场馆装修及安装交付、场馆运营管理的实战经验。口袋屋秉承"为客户场馆盈利"的商业逻辑,用“省心省力一站式"的服务准则,为客户的商业乐园盈利提供最快捷高效的服务,如果您想了解更多关于我们的信息,可以扫描图中二维码,期待与您相遇。

















