金华APFUNLL室内运动潮玩馆—口袋屋室内乐园建造案例
金华APFUNLL室内潮玩馆作为全新概念的主题乐园,以 2500㎡的宏大规模,集基础运动、体育竞技、冒险挑战、数字运动、狂欢派对于一身,已然成为运动 + 健康 + 娱乐三位一体的社交新坐标。整个场馆主要划分为两大区域:竞技运动街区和社交运动街区。清晰的功能分区,让不同需求的玩家都能找到属于自己的乐趣天地。
一、APFUNLL室内运动潮玩馆项目背景
银泰百货金华之心店坐落于金华市中心的婺城区,与金华市政府直线距离仅 700 米,地理位置得天独厚。该店精心打造了一个探险梦世界,以亲子业态为核心,不仅为儿童提供了欢乐的游乐天地,也为亲子互动创造了绝佳场所。同时,还设置了家庭运动馆和电竞密室等娱乐社交空间,全方位满足不同人群的娱乐需求。
二、APFUNLL 室内运动潮玩馆从设计到落地
场馆总占地面积达 2500㎡,其中 600 平米的下沉区高度接近 10 米,其余区域高度约 4.5 米。我们巧妙利用下沉的挑空空间,精心搭建了对层高有较高要求的设备。在蹦床的上空增设了高空拓展项目,不锈钢滑梯从 4 楼一直延伸至 3 楼的下沉区,还有艺术攀岩、梅花桩以及竞技攀岩等项目。这些项目在趣味性、挑战性和体能性方面巧妙穿插,为玩家带来了无与伦比的游玩体验。

【整馆规划】
整个场馆主要划分为两大区域:竞技运动街区和社交运动街区。清晰的功能分区,让不同需求的玩家都能找到属于自己的乐趣天地。

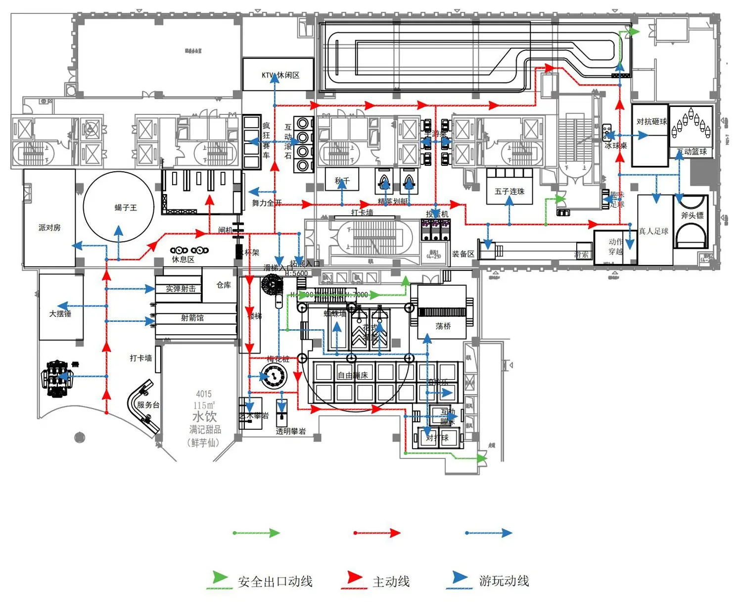
【动线图】
【设备 + 环境效果】
花式蹦床、高空拓展、攀岩、梅花桩、超能机甲、互动滚球、滑梯、投篮、VR 滑雪、疯狂赛车、足球,还有 KTV 休闲区……40 + 项目精彩纷呈,运动游乐设备新颖独特。在这里,你可以告别烦恼、摆脱传统与俗套,尽情在运动潮玩中释放真实的自我,享受别样的欢乐时光。
三、APFUNLL室内运动乐园潮玩馆项目介绍


刺激挑战类:潮玩蹦床区、高空拓展、高空滑轨、梅花桩、艺术攀岩、竞技攀岩、不锈钢滑梯、拍拍乐、蜘蛛人、互动蹦床、互动砸球、海绵池和荡桥,每一个项目都充满挑战与刺激,等待你去征服。

热血竞技类:蝎子王、实弹射击、方格大战,让你在竞技中感受速度与激情,体验热血沸腾的快感。

动感科技类:舞力全开、互动滚球、疯狂赛车、卡丁车,将科技与娱乐完美融合,带来沉浸式的动感体验。


休闲娱乐类:Switch 游戏、街机、互动秋千、精英赛艇、台球、竞技足球、低空滑索、投篮机,无论是独自享受还是与朋友一起玩耍,都能找到属于自己的休闲方式。
关于口袋屋

口袋屋作为国内知名的运动乐园设备厂家和室内乐加盟品牌,专注于一站式商业乐园建造服务,目前口袋屋已在全球建造超1000+场馆案例,拥有丰富的场馆规划设计,设备生产制造、场馆装修及安装交付、场馆运营管理的实战经验。口袋屋秉承"为客户场馆盈利"的商业逻辑,用“省心省力一站式"的服务准则,为客户的商业乐园盈利提供最快捷高效的服务,如果您想了解更多关于我们的信息,可以扫描图中二维码,期待与您相遇。



















